



企業精神:愛崗敬業,致力環保,團結協作,技術創新,艱苦創業。
公司使命:為人類創造“藍天白云,清流碧水”的美好生存環境。

朗聚天地之氣,滌蕩萬里長空

DESIGN ORIENTATION 設計定位

INTELLIGENT OFFICE SUGGESTIONS 智能辦公建議
現代國際化,生態、智能、創新

中古風格"Midcentury modern"本身是一個很難定義的詞,其實它指向的是20世紀中葉(大概從1933年到 1965年)的建筑,室內,家具和平面設計的風格。得益于20世紀初的工業革命,設計師們可以運用像塑料這樣現在被人百般詬病的新材料;兩次世界大戰打破 原來階級差距巨大的傳統社會制度,設計師們放飛對未來的生活的幻想,設計出這些線條流暢簡潔,美觀而 實用的室內和家具,服務于二戰后產生的社會新階級:中產階級。


設計需求:
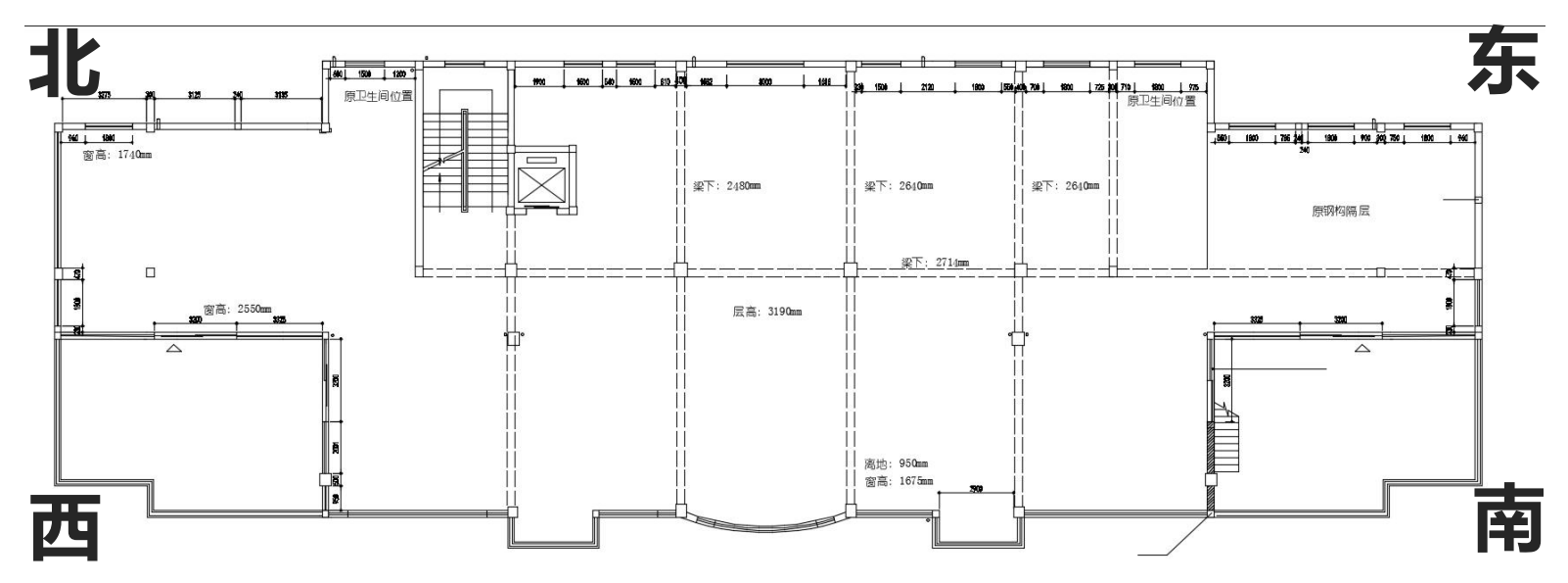
精裝修:布局要求 建筑面積931 ㎡
套內面積:約906.7㎡
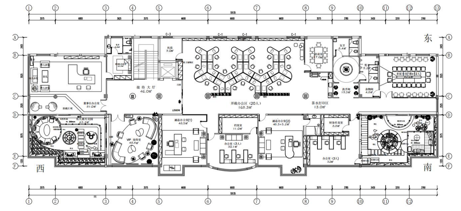
A.方案一(重點)
1.董事長辦公室:帶休息室 一間
2.副總辦公室:各帶休息室 二間
3.大空間辦公室:25人工位以及5~6人會議桌。
4.財務室:2人工位,不帶票據室
5.綜合辦公室:2人工位
6.備用辦公室:一人工位
7.VIP接待室:10人左右,帶茶水間
8.多媒體室兼會議室:30人
9.公共衛生間;男女蹲位各兩個
10.露臺:左右兩個景觀設計。右邊設置一部上屋面梯。
B.方案二
1.董事長辦公室:帶休息室及獨立衛生間,一套
2.副總辦公室:各帶休息室及獨立衛生間,二套
3.健身房
4.VIP接待室:10人左右,
5.多媒體室兼會議室:30人
6.公共衛生間:男女蹲位各兩個
7.獨立茶水間
8.露臺:左右兩個景觀設計;右邊設置一部上屋面梯
9.機房及設備間











【空間效果圖】









